Nhà Liền Kề, Biệt Thự Vinhomes Hậu Nghĩa Long An

Cập Nhật Giá Bán Nhà Phố Vinhomes Cần Giờ, , Căn Hộ Vinhomes Grand Park, Vinhomes Long An, Vinhomes Hà Nội... - Cập nhật 24/7

Loading...
Đăng tin rao

Tìm ngay bất động sản

Nhà Liền Kề, Biệt Thự Vinhomes Hậu Nghĩa Long An

Vị trí:

3/2, Thị trấn Hậu Nghĩa, Huyện Đức Hòa, Long An
Giá:
Thương lượng
Diện tích:
  • Chia sẻ qua viber bài: Nhà Liền Kề, Biệt Thự Vinhomes Hậu Nghĩa Long An
  • Chia sẻ qua reddit bài:Nhà Liền Kề, Biệt Thự Vinhomes Hậu Nghĩa Long An

Nhà Liền Kề, Biệt Thự Vinhomes Hậu Nghĩa Long An

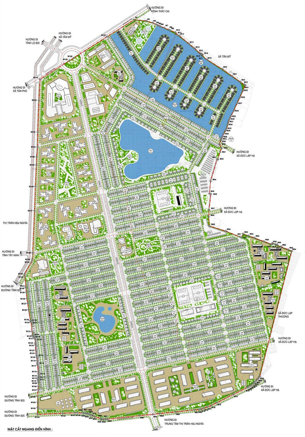
Chào mừng quý khách đến với Vinhomes Green city Hậu Nghĩa - Thành phố xanh bên hồ, nơi kiến tạo cuộc sống thịnh vượng và đẳng cấp!

Vinhomes Green city Hậu Nghĩa là dự án khu đô thị kiểu mẫu được quy hoạch đồng bộ, hiện đại, mang đến không gian sống lý tưởng cho cư dân với đa dạng loại hình sản phẩm:

Khu đô thị Vinhomes Hậu Nghĩa - HA Tham Khảo

Biệt thự sang trọng:

  • Số lượng: 517 căn
  • Loại hình: Biệt thự đơn lập và song lập
  • Thiết kế: Phong cách Tân Cổ Điển tinh tế, sang trọng
  • Chiều cao: Tối đa 5 tầng

Biệt Thự Hồ Trung Tâm Vinhomes Hậu Nghĩa - HA: Tham Khảo

Nhà phố thương mại (Shophouse) và nhà phố liền kề:

  • Số lượng: 4.510 căn
  • Loại hình: Nhà phố thương mại (shophouse) và nhà phố liền kề
  • Chiều cao: Tối đa 5 tầng
  • Là cơ hội đầu tư và kinh doanh hấp dẫn.

Khu tái định cư:

  • Số lượng: 491 lô

Chung cư cao tầng hiện đại:

  • Số lượng: 5 ô quy hoạch
  • Chiều cao: 25 tầng
  • Tổng diện tích: 110.212 m²
  • Cung cấp các căn hộ tiện nghi, hiện đại.

Nhà ở xã hội:

  • Tổng diện tích: 159.898 m²
  • Số lượng: 5 ô quy hoạch
  • Chiều cao: 5 tầng
  • Đáp ứng nhu cầu nhà ở cho cộng đồng.

Vinhomes Green city Hậu Nghĩa không chỉ mang đến những sản phẩm nhà ở chất lượng cao mà còn kiến tạo một môi trường sống xanh, tiện nghi với hệ thống tiện ích đẳng cấp:

  • Hồ sinh thái rộng lớn, công viên cây xanh
  • Trung tâm thương mại Vincom Mega Mall
  • Hệ thống trường học, bệnh viện tiêu chuẩn quốc tế
  • Khu vui chơi giải trí, thể thao hiện đại

Vị trí đắc địa:

  • Tọa lạc tại thị trấn Hậu Nghĩa, huyện Đức Hòa, tỉnh Long An
  • Kết nối thuận tiện với TP.HCM và các tỉnh miền Tây Nam Bộ
  • Nằm trên trục đường Quốc Lộ N2.

Vinhomes Green city Hậu Nghĩa hứa hẹn sẽ trở thành biểu tượng mới của sự thịnh vượng và đẳng cấp tại khu vực. Hãy nhanh tay sở hữu cho mình một không gian sống lý tưởng tại đây!

 

 

Nhà Phố Liền kề, Biệt thự Vinhomes Green city Hậu Nghĩa - Hot line: 0973787247

⏰ Thời gian: 8h:00 - 1900 | Hàng Ngày
???? Trực tiếp tại dự án Vinhomes Green city Hậu Nghĩa

*** Thông tin trên chỉ sử dụng mục đích tham khảo, mọi thông tin chi tiết về dự án, sản phẩm, giá bán sẽ được chủ đầu tư thống báo bằng văn bản, chúng tôi sẽ cập nhật điều chỉnh bổ sung ngay khi có thông tin chính thức từ chủ đầu tư.

Danh mục sản phẩm Vinhomes Green City Long An

Thống kê: Liền kề & Shop

-  Nhà Liền kề Vinhomes Green City 5x12 - 173m2 ;

- Nhà Liền kề Vinhomes Green City 5x15 - 230m2 ;

- Nhà Liền kề Vinhomes Green City 5x18 - 260m2 ;

- Nhà Liền kề Vinhomes Green City 6x18 - 310m2 ;

- Nhà Liền kề Vinhomes Green City 6x20 - 330m2 ;

- Shop thương mại Vinhomes Green City 7,5x18 / 7,5x20 + 8x15 / 8,5x18 / 8,5x20

- Biệt thự Compound / ShopVillas Vinhomes Green City + 10x15 / 14x20 / 15x20

Tiềm năng Vinhomes Green cityTiềm năng Vinhomes Green city

Nhà Phố Liền kề, Biệt thự Vinhomes Green City Hậu Nghĩa - Hot line: 0938256228  (Mr.Nhật)

⏰ Thời gian: 8h:00 - 1900 | Hàng Ngày
???? Trực tiếp tại dự án Vinhomes Green CityHậu Nghĩa

Hình ảnh

Cập Nhật Giá Bán Nhà Phố Vinhomes Cần Giờ, , Căn Hộ Vinhomes Grand Park, Vinhomes Long An, Vinhomes Hà Nội... - Cập nhật 24/7
Cập Nhật Giá Bán Nhà Phố Vinhomes Cần Giờ, , Căn Hộ Vinhomes Grand Park, Vinhomes Long An, Vinhomes Hà Nội... - Cập nhật 24/7
Cập Nhật Giá Bán Nhà Phố Vinhomes Cần Giờ, , Căn Hộ Vinhomes Grand Park, Vinhomes Long An, Vinhomes Hà Nội... - Cập nhật 24/7
Cập Nhật Giá Bán Nhà Phố Vinhomes Cần Giờ, , Căn Hộ Vinhomes Grand Park, Vinhomes Long An, Vinhomes Hà Nội... - Cập nhật 24/7
Cập Nhật Giá Bán Nhà Phố Vinhomes Cần Giờ, , Căn Hộ Vinhomes Grand Park, Vinhomes Long An, Vinhomes Hà Nội... - Cập nhật 24/7
Cập Nhật Giá Bán Nhà Phố Vinhomes Cần Giờ, , Căn Hộ Vinhomes Grand Park, Vinhomes Long An, Vinhomes Hà Nội... - Cập nhật 24/7
Cập Nhật Giá Bán Nhà Phố Vinhomes Cần Giờ, , Căn Hộ Vinhomes Grand Park, Vinhomes Long An, Vinhomes Hà Nội... - Cập nhật 24/7
Cập Nhật Giá Bán Nhà Phố Vinhomes Cần Giờ, , Căn Hộ Vinhomes Grand Park, Vinhomes Long An, Vinhomes Hà Nội... - Cập nhật 24/7
Cập Nhật Giá Bán Nhà Phố Vinhomes Cần Giờ, , Căn Hộ Vinhomes Grand Park, Vinhomes Long An, Vinhomes Hà Nội... - Cập nhật 24/7
Cập Nhật Giá Bán Nhà Phố Vinhomes Cần Giờ, , Căn Hộ Vinhomes Grand Park, Vinhomes Long An, Vinhomes Hà Nội... - Cập nhật 24/7
Cập Nhật Giá Bán Nhà Phố Vinhomes Cần Giờ, , Căn Hộ Vinhomes Grand Park, Vinhomes Long An, Vinhomes Hà Nội... - Cập nhật 24/7
Cập Nhật Giá Bán Nhà Phố Vinhomes Cần Giờ, , Căn Hộ Vinhomes Grand Park, Vinhomes Long An, Vinhomes Hà Nội... - Cập nhật 24/7

Thông tin bất động sản

Loại bất động sản:

Bán/Cho Thuê Nhà Phố Biệt Thự Vinhomes

Thuộc dự án:

Hướng nhà:

Số phòng ngủ:

0

Số tầng

5

Số toilet:

0

Ngày đăng:

04/03/2025 12:00:00

Thông tin liên lạc

Tên:

Bất Động Sản

SĐT:

0938256228

Email:

nhathung2007@gmail.com

Tên đầy đủ:

TRẦN THẾ NHẬT

Địa chỉ:

Số di động:

0938256228

đăng ký thông tin để nhận ngay bảng giá

Bình luận 

Tin rao liên quan

Dự án nổi bật

Không có thông tin cho loại dữ liệu này
Cập Nhật Giá Bán Nhà Phố Vinhomes Cần Giờ, , Căn Hộ Vinhomes Grand Park, Vinhomes Long An, Vinhomes Hà Nội... - Cập nhật 24/7